Façade Chevet
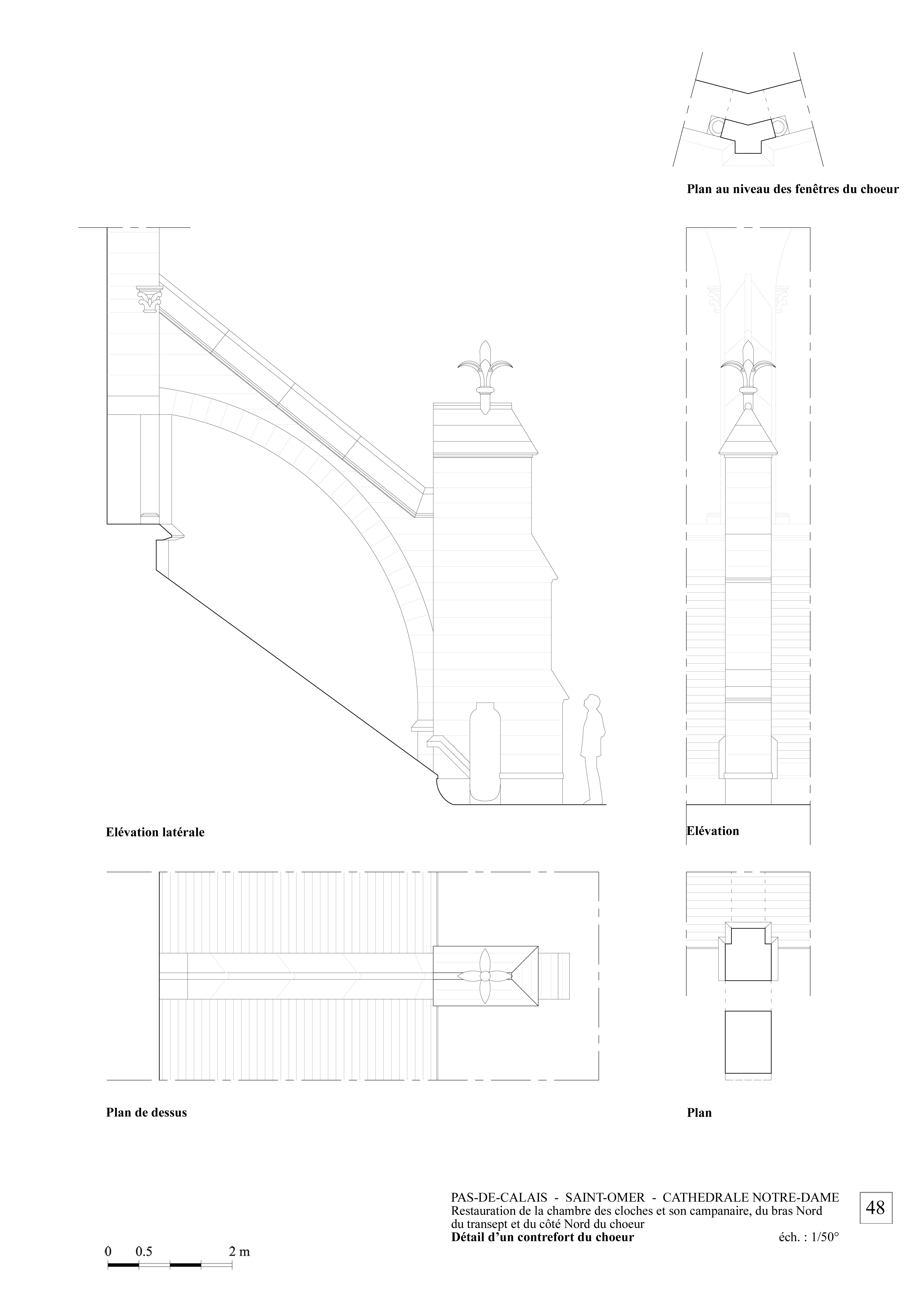
La zône intéressée est colorée en vert sur la vue en plan ci-dessous. Les descriptions architecturales de chaque façade ( contre-forts "de culées", arcs-boutants, pinacles, corniches, abats-sons, balustrades, chéneaux, gargouilles, larmiers ), sont en cours de recollement et nous espérons être en mesure de les uploader sur le site pour fin Décembre 2026.








